niezbędne są 1–2 tygodnie na wykonanie ciepłej płyty fundamentowej (możesz wykonać ją we własnym zakresie lub zlecić to zadanie nam) oraz dodatkowo 28 dni na uzyskanie pełnej wytrzymałości betonu.
ST-2 to rozbudowana wersja popularnego modelu ST-1, powiększona o dodatkowy segment w poziomie parteru. Dzięki temu dom zyskuje wyraźnie większą powierzchnię użytkową i jeszcze lepszą funkcjonalność, pozostając przy charakterystycznej, nowoczesnej bryle typu „stodoła”.
Przemyślany układ, cztery sypialnie, dwie łazienki oraz osobne pomieszczenie gospodarcze z wejściem z zewnątrz czynią go idealnym domem całorocznym dla dużej rodziny lub osób pracujących zdalnie.
Układ pomieszczeń został zaprojektowany z myślą o dużej rodzinie oraz osobach pracujących zdalnie. Na parterze znajduje się przestronny salon z aneksem kuchennym, tworzący centralną, dzienną strefę domu, a także łazienka, wiatrołap, pomieszczenia techniczne oraz dodatkowe pomieszczenie gospodarcze z niezależnym wejściem z zewnątrz – idealne na przechowywanie mebli ogrodowych, sprzętu sportowego czy narzędzi.
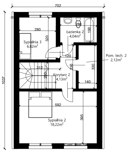
Na piętrze zaplanowano strefę nocną z sypialniami oraz drugą łazienką. Dzięki elastycznemu układowi jedna z sypialni może z powodzeniem pełnić funkcję domowego biura, co czyni ST-2 bardzo atrakcyjnym rozwiązaniem dla rodzin łączących życie domowe z pracą zdalną.
Model ST-2 to całoroczny dom modułowy, który łączy nowoczesną estetykę, energooszczędne rozwiązania i szybki czas realizacji. Sprawdzi się zarówno jako główne miejsce zamieszkania, jak i komfortowy dom pod miastem lub na obrzeżach terenów zielonych.
Powierzchnia użytkowa:
Układ pomieszczeń:
Przeznaczenie:
ST-2 to powiększona wersja modelu ST-1 z dodatkowym segmentem na parterze. Przemyślany układ, cztery sypialnie, dwie łazienki oraz osobne pomieszczenie gospodarcze z wejściem z zewnątrz czynią go idealnym domem całorocznym dla dużej rodziny lub osób pracujących zdalnie.
Budowa tradycyjnego domu często przeciąga się w nieskończoność. W przypadku domu modułowego ST-1 proces jest przejrzysty i szybki i nie przekracza 2 miesięcy:
niezbędne są 1–2 tygodnie na wykonanie ciepłej płyty fundamentowej (możesz wykonać ją we własnym zakresie lub zlecić to zadanie nam) oraz dodatkowo 28 dni na uzyskanie pełnej wytrzymałości betonu.
1-2 dni – instalacja czterech segmentów na gotowej płycie.
1–1,5 tygodnia – niezbędne połączenia budowlano-instalacyjne i odbiór budynku.
Łącznie od rozpoczęcia prac do postawienia gotowego domu mijają 3 miesiące*, a nawet mniej – to okres, w którym w tradycyjnym budownictwie zwykle mamy stan surowy.
* Czas realizacji może wydłużyć się w przypadku zastosowania nietypowych materiałów wykończeniowych lub stolarki okiennej.



Pakiet podstawowy domu model ST-1 obejmuje kompletną konstrukcję oraz kluczowe elementy wykończenia, zgodne z aktualnymi normami budowlanymi (WT2021). To solidna baza do dalszej personalizacji domu.
stalowa konstrukcja nośna budynku
ocieplenie zgodne z wymaganiami WT2021
kompletne warstwy podłóg: warstwa nośna, podłoga pływająca oraz suchy jastrych
sufity podwieszane
okładziny wewnętrzne ścian
ściany zewnętrzne – płyty gipsowo-włóknowe Fermacell
ściany wewnętrzne – płyty gipsowo-kartonowe Rigips
ruszt instalacyjny z wykonaną instalacją elektryczną, wodną i sanitarną
elewacja parteru z desek sosnowych impregnowanych ciśnieniowo (pióro-wpust), montowanych w układzie pionowym na ruszcie dwukierunkowym
elewacja piętra oraz dach z blachy na rąbek stojący w kolorze antracytowym (RAL 7016)
trzyszybowa stolarka okienna PCV Gealan w kolorze antracytowym
stalowe parapety zewnętrzne
stalowe drzwi wejściowe Wikęd
zewnętrzne balustrady stalowe w kolorze RAL 7016 (piętro)
schody sosnowe z poręczą
projekt domu w cenie
Tak – to pełnoprawny dom całoroczny spełniający wszystkie normy budowlane.
Tak – układ ścian działowych i instalacji można dopasować do własnych potrzeb.
Tak – technologia modułowa pozwala dodawać lub odejmować segmenty, gdy zmienią się Twoje wymagania. Rozbudowa może odbyć się poprzez dostawienie modułu obok istniejącego domu, a nie w górę (dostawienie piętra).
Sam montaż czterech segmentów zajmuje jeden dzień, a prace końcowe około 1–1,5 tygodnia.
Tak – dzięki suchej technologii nie trzeba czekać na wysychanie materiałów, można od razu przystąpić do aranżacji wnętrz.
Tak – rekuperacja i odpowiednia izolacja gwarantują niskie koszty eksploatacji.
Tak – na prośbę klienta możemy przygotować niezbędne instalacje elektryczne oraz wodno-kanalizacyjne.
Oczywiście, pod warunkiem, że konstrukcja dachu jest odpowiednio zaprojektowana i wzmocniona do przenoszenia obciążeń paneli.
Od ponad 30 lat pracujemy w branży konstrukcji stalowych. Łączymy tradycję i doświadczenie z nowoczesnymi technologiami prefabrykacji. Efekt? Domy, które są trwałe, precyzyjnie wykonane i gotowe do zamieszkania w rekordowym czasie.
Marzysz o własnym miejscu na ziemi? Skontaktuj się z naszym doradcą i dowiedz się, jak szybko możemy spełnić Twoje marzenie. Wspólnie stworzymy hybrydowy dom modułowy, który będzie dopasowany do Twojego stylu życia i budżetu.
Zadzwoń lub napisz – pierwszy krok do własnego domu może być prostszy, niż myślisz.
Budujemy domy w nowoczesnej technologii prefabrykacji. Dzięki temu twój dom powstaje w kontrolowanych warunkach hali produkcyjnej, skąd trafia bezpośrednio na twoją działkę. Zamiast lat niepewności i wydatków – własny, bezpieczny i komfortowy dom w kilka miesięcy.
© 2025 Task Home