

W-S1 to wariant popularnego modelu W-1 w wersji ze skośnym dachem, zaprojektowany dla osób, które cenią bardziej klasyczną, „domkową” sylwetkę budynku, a jednocześnie chcą zachować nowoczesną funkcjonalność kompaktowego domu wypoczynkowego. Ten model świetnie wpisuje się w leśne i rekreacyjne otoczenie oraz w miejsca, gdzie warunki zabudowy lub miejscowy plan wymagają dachu spadzistego.
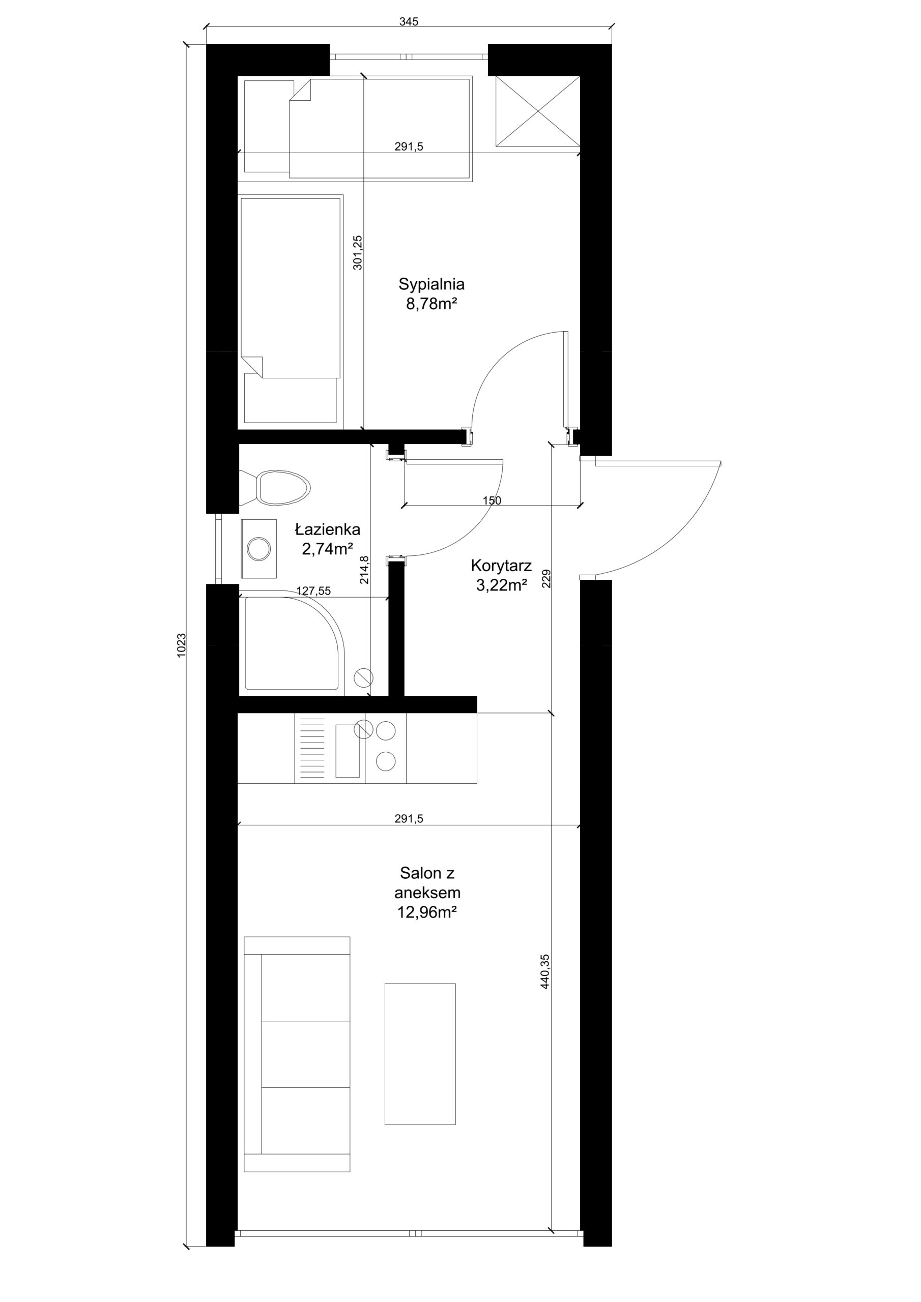
Układ funkcjonalny pozostaje taki sam jak w W-1: salon z aneksem kuchennym jako główna strefa dzienna, oddzielna sypialnia oraz łazienka. Duże przeszklenia w salonie otwierają wnętrze na taras i krajobraz, pozwalając cieszyć się bliskością natury o każdej porze roku. Dzięki kompaktowej formie domek sprawdzi się zarówno jako weekendowy azyl, jak i komfortowa baza na dłuższe pobyty.
Model W-S1 może być wykończony w naturalnym, „drewnianym” klimacie – z okładzinami ścian i sufitów z sosny lub świerku oraz trwałymi podłogami SPC. To połączenie nowoczesnej technologii modułowej z przytulnym charakterem domku wypoczynkowego w otoczeniu zieleni.
Powierzchnia użytkowa: 27,7 m²
Zabudowa: do 35 m²
Układ pomieszczeń:
– salon z aneksem kuchennym
– 1 sypialnia
– łazienka
Charakterystyka:
– dach skośny (spadzisty)
– duże przeszklenia w strefie dziennej
– kompaktowa bryła idealna na działki rekreacyjne
Wykończenie (opcjonalnie):
– okładziny drewniane (sosna / świerk)
– płyty świerkowe z drewna klejonego warstwowo
– podłogi SPC
Przeznaczenie:
– domek wypoczynkowy / letniskowy
– idealny na działkę rekreacyjną
– komfortowy dla 2 osób
Od ponad 30 lat pracujemy w branży konstrukcji stalowych. Łączymy tradycję i doświadczenie z nowoczesnymi technologiami prefabrykacji. Efekt? Domy, które są trwałe, precyzyjnie wykonane i gotowe do zamieszkania w rekordowym czasie.
Marzysz o własnym miejscu na ziemi? Skontaktuj się z naszym doradcą i dowiedz się, jak szybko możemy spełnić Twoje marzenie. Wspólnie stworzymy hybrydowy dom modułowy, który będzie dopasowany do Twojego stylu życia i budżetu.
Zadzwoń lub napisz – pierwszy krok do własnego domu może być prostszy, niż myślisz.
Budujemy domy w nowoczesnej technologii prefabrykacji. Dzięki temu twój dom powstaje w kontrolowanych warunkach hali produkcyjnej, skąd trafia bezpośrednio na twoją działkę. Zamiast lat niepewności i wydatków – własny, bezpieczny i komfortowy dom w kilka miesięcy.
© 2025 Task Home