niezbędne są 1–2 tygodnie na wykonanie ciepłej płyty fundamentowej (możesz wykonać ją we własnym zakresie lub zlecić to zadanie nam) oraz dodatkowo 28 dni na uzyskanie pełnej wytrzymałości betonu.
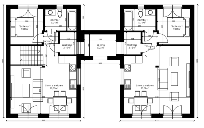
ST-4 to wyjątkowy model w rodzinie ST – oparty na koncepcji ST-3, lecz uzupełniony o funkcjonalny łącznik, który pozwala na wygodne połączenie dwóch niezależnych części domu. To idealne rozwiązanie dla osób, które chcą mieszkać blisko siebie, ale jednocześnie zachować prywatność i autonomię każdej ze stref.
Układ ST-4 umożliwia stworzenie dwóch pełnowartościowych części mieszkalnych połączonych wspólnym łącznikiem. Dzięki temu dom doskonale sprawdzi się jako rozwiązanie dla rodziny wielopokoleniowej – np. z myślą o zamieszkaniu rodziców lub dziadków „tuż obok”, bez rezygnacji z niezależności. To również bardzo atrakcyjna propozycja dla osób, które chcą połączyć funkcję mieszkalną z prowadzeniem firmy, gabinetem, biurem projektowym czy pracownią.
Część prawa może zostać zaprojektowana jako lustrzane odbicie parteru części lewej, co daje możliwość stworzenia dwóch podobnych układów funkcjonalnych lub dostosowania jednej ze stref do zupełnie innej funkcji – np. części biurowej, apartamentu gościnnego albo przestrzeni pod wynajem. ST-4 to nowoczesny, całoroczny dom modułowy, który daje niespotykaną elastyczność w organizacji życia rodzinnego i zawodowego w jednym miejscu.
Powierzchnia użytkowa:
– Parter – część lewa: 50,44 m²
– Parter – część prawa: 55,84 m²
Łącznik: 5,73 m²
Piętro: 35,33 m²
Łącznie: ok. 147,3 m²
Układ pomieszczeń (bazowo jak w ST-1):
– salon z aneksem kuchennym
– sypialnie
– łazienki
– wiatrołap
– pomieszczenia techniczne
Możliwości aranżacji:
– część prawa jako lustrzane odbicie części lewej
– niezależne mieszkanie dla dziadków / rodziców
– biuro lub siedziba firmy połączona z domem
– apartament gościnny lub przestrzeń pod najem
Przeznaczenie:
– dom całoroczny
– dla rodzin wielopokoleniowych
– dla osób łączących życie prywatne z prowadzeniem działalności
ST-4 to modułowy dom z łącznikiem, który pozwala stworzyć dwie niezależne strefy mieszkalne w jednym budynku. Idealny dla rodzin wielopokoleniowych lub osób, które chcą połączyć dom z siedzibą firmy lub biurem.
Budowa tradycyjnego domu często przeciąga się w nieskończoność. W przypadku domu modułowego ST-1 proces jest przejrzysty i szybki i nie przekracza 2 miesięcy:
niezbędne są 1–2 tygodnie na wykonanie ciepłej płyty fundamentowej (możesz wykonać ją we własnym zakresie lub zlecić to zadanie nam) oraz dodatkowo 28 dni na uzyskanie pełnej wytrzymałości betonu.
1-2 dni – instalacja czterech segmentów na gotowej płycie.
1–1,5 tygodnia – niezbędne połączenia budowlano-instalacyjne i odbiór budynku.
Łącznie od rozpoczęcia prac do postawienia gotowego domu mijają 3 miesiące*, a nawet mniej – to okres, w którym w tradycyjnym budownictwie zwykle mamy stan surowy.
* Czas realizacji może wydłużyć się w przypadku zastosowania nietypowych materiałów wykończeniowych lub stolarki okiennej.






Pakiet podstawowy domu model ST-1 obejmuje kompletną konstrukcję oraz kluczowe elementy wykończenia, zgodne z aktualnymi normami budowlanymi (WT2021). To solidna baza do dalszej personalizacji domu.
stalowa konstrukcja nośna budynku
ocieplenie zgodne z wymaganiami WT2021
kompletne warstwy podłóg: warstwa nośna, podłoga pływająca oraz suchy jastrych
sufity podwieszane
okładziny wewnętrzne ścian
ściany zewnętrzne – płyty gipsowo-włóknowe Fermacell
ściany wewnętrzne – płyty gipsowo-kartonowe Rigips
ruszt instalacyjny z wykonaną instalacją elektryczną, wodną i sanitarną
elewacja parteru z desek sosnowych impregnowanych ciśnieniowo (pióro-wpust), montowanych w układzie pionowym na ruszcie dwukierunkowym
elewacja piętra oraz dach z blachy na rąbek stojący w kolorze antracytowym (RAL 7016)
trzyszybowa stolarka okienna PCV Gealan w kolorze antracytowym
stalowe parapety zewnętrzne
stalowe drzwi wejściowe Wikęd
zewnętrzne balustrady stalowe w kolorze RAL 7016 (piętro)
schody sosnowe z poręczą
projekt domu w cenie
Tak – to pełnoprawny dom całoroczny spełniający wszystkie normy budowlane.
Tak – układ ścian działowych i instalacji można dopasować do własnych potrzeb.
Tak – technologia modułowa pozwala dodawać lub odejmować segmenty, gdy zmienią się Twoje wymagania. Rozbudowa może odbyć się poprzez dostawienie modułu obok istniejącego domu, a nie w górę (dostawienie piętra).
Sam montaż czterech segmentów zajmuje jeden dzień, a prace końcowe około 1–1,5 tygodnia.
Tak – dzięki suchej technologii nie trzeba czekać na wysychanie materiałów, można od razu przystąpić do aranżacji wnętrz.
Tak – rekuperacja i odpowiednia izolacja gwarantują niskie koszty eksploatacji.
Tak – na prośbę klienta możemy przygotować niezbędne instalacje elektryczne oraz wodno-kanalizacyjne.
Oczywiście, pod warunkiem, że konstrukcja dachu jest odpowiednio zaprojektowana i wzmocniona do przenoszenia obciążeń paneli.
Od ponad 30 lat pracujemy w branży konstrukcji stalowych. Łączymy tradycję i doświadczenie z nowoczesnymi technologiami prefabrykacji. Efekt? Domy, które są trwałe, precyzyjnie wykonane i gotowe do zamieszkania w rekordowym czasie.
Marzysz o własnym miejscu na ziemi? Skontaktuj się z naszym doradcą i dowiedz się, jak szybko możemy spełnić Twoje marzenie. Wspólnie stworzymy hybrydowy dom modułowy, który będzie dopasowany do Twojego stylu życia i budżetu.
Zadzwoń lub napisz – pierwszy krok do własnego domu może być prostszy, niż myślisz.
Budujemy domy w nowoczesnej technologii prefabrykacji. Dzięki temu twój dom powstaje w kontrolowanych warunkach hali produkcyjnej, skąd trafia bezpośrednio na twoją działkę. Zamiast lat niepewności i wydatków – własny, bezpieczny i komfortowy dom w kilka miesięcy.
© 2025 Task Home