niezbędne są 1–2 tygodnie na wykonanie ciepłej płyty fundamentowej (możesz wykonać ją we własnym zakresie lub zlecić to zadanie nam) oraz dodatkowo 28 dni na uzyskanie pełnej wytrzymałości betonu.
ST-3 to najbardziej rozbudowany wariant domu w linii ST – powstał na bazie modelu ST-1 z dwoma dodatkowymi segmentami w poziomie parteru. Dzięki temu dom oferuje znacznie większą powierzchnię użytkową oraz ogromną elastyczność w aranżacji dodatkowych przestrzeni, dostosowanych do realnych potrzeb domowników.
Podstawowy układ funkcjonalny modelu ST-1 zostaje zachowany, natomiast dwa dostawione segmenty mogą pełnić dowolną funkcję – od dodatkowych sypialni, przez prywatną strefę rodziców z garderobą i łazienką, aż po garaż w bryle budynku, domowe biuro, pracownię czy pokój hobby. Taka modułowość sprawia, że ST-3 łatwo dopasować zarówno do potrzeb dużej rodziny, jak i osób prowadzących działalność lub pracujących zdalnie.
Na piętrze zaplanowano strefę nocną z sypialniami oraz drugą łazienką. Dzięki elastycznemu układowi jedna z sypialni może z powodzeniem pełnić funkcję domowego biura, co czyni ST-2 bardzo atrakcyjnym rozwiązaniem dla rodzin łączących życie domowe z pracą zdalną.
Przestronna strefa dzienna na parterze sprzyja wspólnemu spędzaniu czasu, a wyraźnie oddzielona strefa nocna na piętrze zapewnia prywatność i komfort domownikom. ST-3 to propozycja dla inwestorów, którzy szukają całorocznego domu modułowego o dużej powierzchni, nowoczesnej bryle typu „stodoła” oraz możliwościach indywidualnej konfiguracji układu pomieszczeń już na etapie projektu.
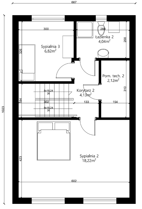
Powierzchnia użytkowa:
Układ bazowy (jak w ST-1):
Możliwości aranżacji dodatkowych segmentów:
Przeznaczenie:
ST-3 to rozbudowany dom modułowy w stylu nowoczesnej stodoły, powiększony o dwa dodatkowe segmenty parteru. Elastyczny układ pozwala stworzyć garaż, biuro, pracownię lub dodatkowe sypialnie – idealny wybór dla dużej rodziny i osób pracujących zdalnie.
Budowa tradycyjnego domu często przeciąga się w nieskończoność. W przypadku domu modułowego ST-1 proces jest przejrzysty i szybki i nie przekracza 2 miesięcy:
niezbędne są 1–2 tygodnie na wykonanie ciepłej płyty fundamentowej (możesz wykonać ją we własnym zakresie lub zlecić to zadanie nam) oraz dodatkowo 28 dni na uzyskanie pełnej wytrzymałości betonu.
1-2 dni – instalacja czterech segmentów na gotowej płycie.
1–1,5 tygodnia – niezbędne połączenia budowlano-instalacyjne i odbiór budynku.
Łącznie od rozpoczęcia prac do postawienia gotowego domu mijają 3 miesiące*, a nawet mniej – to okres, w którym w tradycyjnym budownictwie zwykle mamy stan surowy.
* Czas realizacji może wydłużyć się w przypadku zastosowania nietypowych materiałów wykończeniowych lub stolarki okiennej.



Pakiet podstawowy domu model ST-1 obejmuje kompletną konstrukcję oraz kluczowe elementy wykończenia, zgodne z aktualnymi normami budowlanymi (WT2021). To solidna baza do dalszej personalizacji domu.
stalowa konstrukcja nośna budynku
ocieplenie zgodne z wymaganiami WT2021
kompletne warstwy podłóg: warstwa nośna, podłoga pływająca oraz suchy jastrych
sufity podwieszane
okładziny wewnętrzne ścian
ściany zewnętrzne – płyty gipsowo-włóknowe Fermacell
ściany wewnętrzne – płyty gipsowo-kartonowe Rigips
ruszt instalacyjny z wykonaną instalacją elektryczną, wodną i sanitarną
elewacja parteru z desek sosnowych impregnowanych ciśnieniowo (pióro-wpust), montowanych w układzie pionowym na ruszcie dwukierunkowym
elewacja piętra oraz dach z blachy na rąbek stojący w kolorze antracytowym (RAL 7016)
trzyszybowa stolarka okienna PCV Gealan w kolorze antracytowym
stalowe parapety zewnętrzne
stalowe drzwi wejściowe Wikęd
zewnętrzne balustrady stalowe w kolorze RAL 7016 (piętro)
schody sosnowe z poręczą
projekt domu w cenie
Tak – to pełnoprawny dom całoroczny spełniający wszystkie normy budowlane.
Tak – układ ścian działowych i instalacji można dopasować do własnych potrzeb.
Tak – technologia modułowa pozwala dodawać lub odejmować segmenty, gdy zmienią się Twoje wymagania. Rozbudowa może odbyć się poprzez dostawienie modułu obok istniejącego domu, a nie w górę (dostawienie piętra).
Sam montaż czterech segmentów zajmuje jeden dzień, a prace końcowe około 1–1,5 tygodnia.
Tak – dzięki suchej technologii nie trzeba czekać na wysychanie materiałów, można od razu przystąpić do aranżacji wnętrz.
Tak – rekuperacja i odpowiednia izolacja gwarantują niskie koszty eksploatacji.
Tak – na prośbę klienta możemy przygotować niezbędne instalacje elektryczne oraz wodno-kanalizacyjne.
Oczywiście, pod warunkiem, że konstrukcja dachu jest odpowiednio zaprojektowana i wzmocniona do przenoszenia obciążeń paneli.
Od ponad 30 lat pracujemy w branży konstrukcji stalowych. Łączymy tradycję i doświadczenie z nowoczesnymi technologiami prefabrykacji. Efekt? Domy, które są trwałe, precyzyjnie wykonane i gotowe do zamieszkania w rekordowym czasie.
Marzysz o własnym miejscu na ziemi? Skontaktuj się z naszym doradcą i dowiedz się, jak szybko możemy spełnić Twoje marzenie. Wspólnie stworzymy hybrydowy dom modułowy, który będzie dopasowany do Twojego stylu życia i budżetu.
Zadzwoń lub napisz – pierwszy krok do własnego domu może być prostszy, niż myślisz.
Budujemy domy w nowoczesnej technologii prefabrykacji. Dzięki temu twój dom powstaje w kontrolowanych warunkach hali produkcyjnej, skąd trafia bezpośrednio na twoją działkę. Zamiast lat niepewności i wydatków – własny, bezpieczny i komfortowy dom w kilka miesięcy.
© 2025 Task Home