

W-1 to kompaktowy, nowoczesny domek wypoczynkowy o zabudowie do 35 m², zaprojektowany z myślą o osobach, które chcą mieć własne miejsce do odpoczynku blisko natury. Prosta bryła z płaskim dachem oraz duże przeszklenia w strefie dziennej sprawiają, że wnętrze naturalnie łączy się z otoczeniem, a widok na zieleń staje się integralną częścią codziennego wypoczynku.
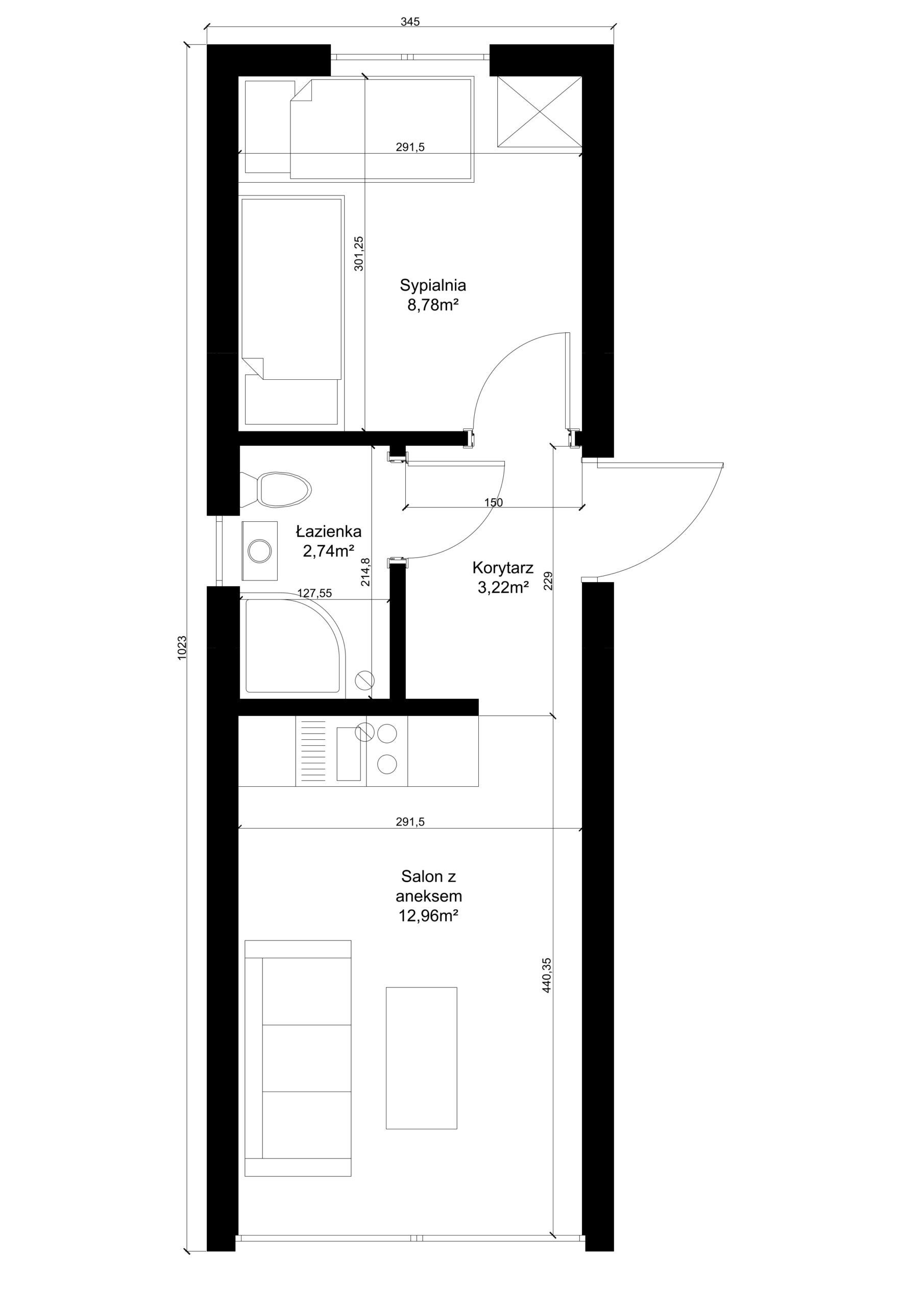
Wnętrze domu obejmuje salon z aneksem kuchennym jako główną strefę dzienną, oddzielną sypialnię oraz łazienkę. Przemyślany układ funkcjonalny pozwala komfortowo korzystać z budynku zarówno podczas weekendowych wyjazdów, jak i dłuższych pobytów. Duże okna w salonie otwierają dom na taras i ogród, potęgując wrażenie bliskości natury.
Model W-1 może zostać wykończony w klimacie naturalnego drewna – z drewnianymi okładzinami ścian i podłóg, co nadaje wnętrzu ciepły, przytulny charakter typowy dla nowoczesnych domków letniskowych. W zależności od preferencji inwestora możliwe jest zastosowanie m.in. podbitki sosnowej lub świerkowej, płyt świerkowych z drewna klejonego warstwowo oraz trwałych płyt SPC na podłogach. Dzięki technologii modułowej TaskHome domek W-1 powstaje szybko i może być posadowiony nawet na trudniejszych działkach rekreacyjnych.
Powierzchnia użytkowa: 27,7 m²
Zabudowa: do 35 m²
Układ pomieszczeń:
– salon z aneksem kuchennym
– 1 sypialnia
– łazienka
Charakterystyka:
– dach płaski
– duże przeszklenia w strefie dziennej
– kompaktowa, nowoczesna bryła
Wykończenie (opcjonalnie):
– naturalne okładziny drewniane ścian i sufitów (sosna / świerk)
– płyty świerkowe z drewna klejonego warstwowo
– trwałe podłogi SPC
Przeznaczenie:
– domek wypoczynkowy / letniskowy
– idealny na działkę rekreacyjną
– komfortowy dla 2 osób
– zabudowa do 35 m²
– duże okna – kontakt z naturą
– kompaktowy, funkcjonalny układ
– możliwość wykończenia wnętrz w naturalnym drewnie
– szybka realizacja w technologii modułowej
– idealny na działkę rekreacyjną
Mały domek. Wielka bliskość natury.
Od ponad 30 lat pracujemy w branży konstrukcji stalowych. Łączymy tradycję i doświadczenie z nowoczesnymi technologiami prefabrykacji. Efekt? Domy, które są trwałe, precyzyjnie wykonane i gotowe do zamieszkania w rekordowym czasie.
Marzysz o własnym miejscu na ziemi? Skontaktuj się z naszym doradcą i dowiedz się, jak szybko możemy spełnić Twoje marzenie. Wspólnie stworzymy hybrydowy dom modułowy, który będzie dopasowany do Twojego stylu życia i budżetu.
Zadzwoń lub napisz – pierwszy krok do własnego domu może być prostszy, niż myślisz.
Budujemy domy w nowoczesnej technologii prefabrykacji. Dzięki temu twój dom powstaje w kontrolowanych warunkach hali produkcyjnej, skąd trafia bezpośrednio na twoją działkę. Zamiast lat niepewności i wydatków – własny, bezpieczny i komfortowy dom w kilka miesięcy.
© 2025 Task Home